Leave a Message

Thank you for your message. We will be in touch with you shortly.

Explore Our Properties

Property Description

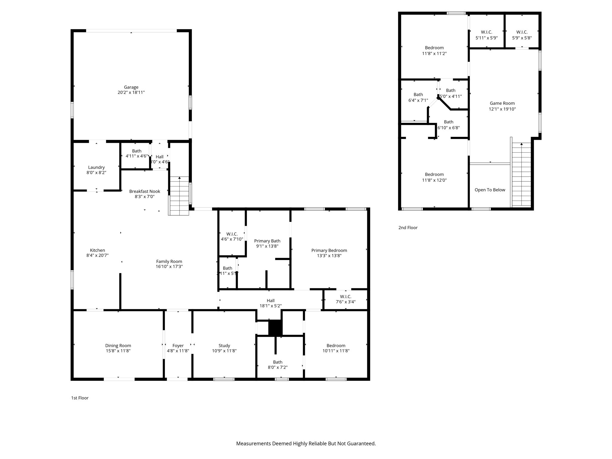
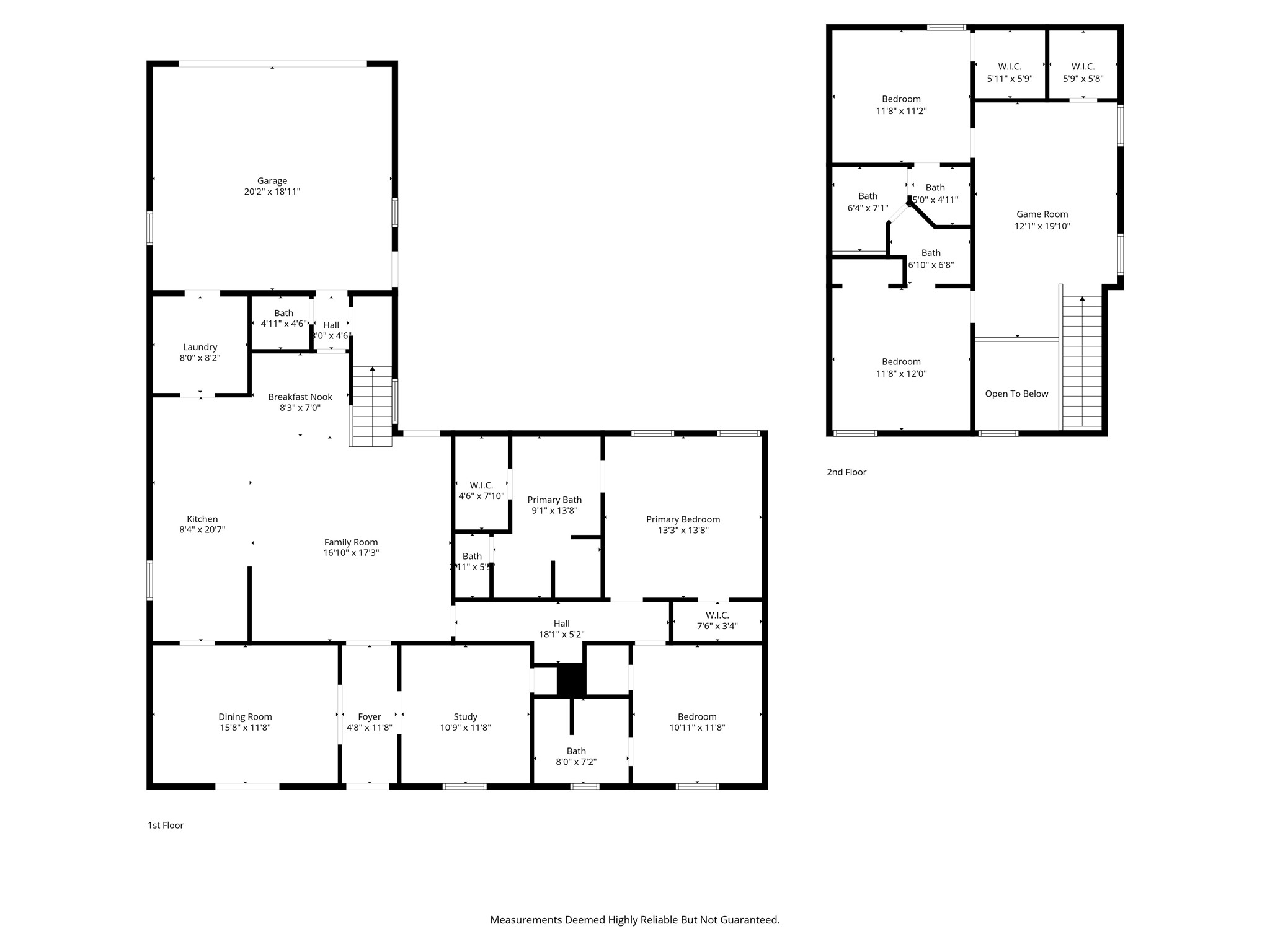
4 bedrooms, Study, 2 living areas, with a pool! Exceptional craftsmanship and timeless style define this stunning home nestled in Richardson's sought-after Reservation! Just down the street from Mimosa Park and within walking distance to Mohawk Elementary and J.J. Pearce High School! Complete renovation down to studs & addition in 2009! Nail-down hardwood floors throughout, vaulted beamed ceilings, floating custom vanities in every bathroom and solid core doors, quality is evident in every detail. The spacious floor plan offers two bedrooms downstairs--each with private en-suite bathrooms--plus a guest half bath, formal dining room, and dedicated private study. The family room impresses with beamed ceilings, abundant natural light, and seamless flow into the gourmet kitchen--ideal for entertaining. The kitchen features custom solid oak cabinetry, built-in Kitchen-Aid refrigerator and professional grade Viking gas range, premium finishes, and open sightlines to the main living areas. Master bedroom with vaulted beamed ceiling and two walk-in closets. Primary bath is a true retreat with double sinks, vanity area, walk-in shower with bench seat, relaxing jetted tub & private water closet. Utility room has exceptional storage, sink with RO water, charming pocket door and a Hoshizaki ice-maker for added convenience. Upstairs, a spacious game room with surround sound anchors two additional bedrooms connected by a Jack & Jill bath--perfect for family or guests. Thoughtful design and high-end finishes continue throughout, enjoy outdoor living at its best with two covered patio areas, flagstone, an in-ground pool, and a board-on-board privacy fence creating a private backyard oasis. The circle driveway adds both beauty and functionality, offering an impressive welcome and ample parking for guests or a large family. This home blends elegance, comfort, and craftsmanship--offering flexible living spaces, luxury features, and exceptional attention to detail inside and out.

Overview

Property Status
For Sale
Lot Size
9,365.4 Sq.Ft.
MLS ID
21111232
Property Type
Residential
Year Built
1965

Features & Amenities

Architecture Styles
Detached
Stories
2
Garage Spaces
2.0
Water Source
Public
Utilites
Sewer Available, Water Available, Cable Available
Pool
Pool
Parking
Circular Driveway, Garage
Heat Type
Central
Air Conditioning
Central Air
Appliances
Built-In Refrigerator, Dishwasher, Disposal, Ice Maker, Microwave, Range, Some Commercial Grade, Vented Exhaust Fan
Other Interior Features
Eat-in Kitchen, High Speed Internet, Cable TV, Wired for Sound
Sewer
Public Sewer
Elementary School
Mohawk
High School
Pearce
School District
Richardson ISD
Sales Price
$1,195,000
Real Estate Tax
$14,073/yr

Downloads

1322 Apache Drive

Schedule a Tour

I would love to help you see this beautiful home! As a full-service agent, I can help you tour. Please submit an offer, and answer questions about the buying process.

Enter a valid email

Thank you

for your interest in 1322 Apache Drive, Richardson, TX 75080

back to page
1322 Apache Drive
explore in 3d

Mortgage Calculator

Estimate your monthly mortgage payment, including the principal and interest, property taxes, and HOA. Adjust the values to generate a more accurate rate.
$0,000 Your Payment 20 15 65
$0,000 Your Payment
1322 Apache Drive
Navigate

Follow Me On Instagram